1. Thông tin cơ bản
- Bàn cầu của thương hiệu thiết bị vệ sinh TOTO
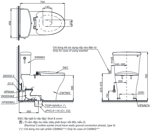
- Tên sản phẩm: Bệt vệ sinh TOTO 2 khối CS986GT2 nắp đóng êm TC393VS
- Men sứ chống dính CeFiONtect
- Hệ thống xả Tornado hiệu quả, tiết kiệm nước, xả gạt 2 chế độ (4.5L/3L)
- Thân dài, thân kín
- Tâm xả: 305mm (Bao gồm van dừng)
- Áp lực nước sử dụng: 0.05 ~ 0.70 (Mpa)
- Mặt nước đọng: 143×105 (mm)
- Đường kính đường thải: Ø63 (mm)
- Kích thước sản phẩm: L700 x W456 x H765 (mm)
2. Tính năng nổi bật
- Bệt vệ sinh CS986GT2#XW thiết kế sang trọng, hiện đại
- Tiết kiệm nước với chế độ xả 4.5L/3L
- Công nghệ CeFiONtect giúp lòng bàn cầu siêu nhẵn, hạn chế tối đa các vết bẩn, vi khuẩn
- Bồn cầu 2 khối thân kín, dễ vệ sinh
- Có thể kết hợp với các dòng nắp rửa điện tử nhằm nâng cao nhu cầu người dùng





Đánh giá
Chưa có đánh giá nào.